Umfassende Sanierungen kombiniert mit einzigartigem Landhausstiel – Familienidylle mit ELW
64569 Nauheim, Einfamilienhaus zum Kauf
Objektdaten
- Objekt ID411
- ObjekttypenEinfamilienhaus, Haus
- Adresse64569 Nauheim
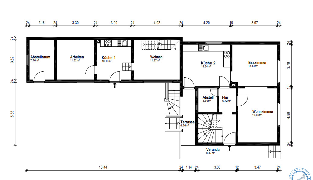
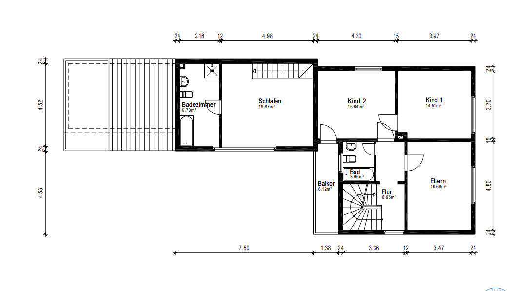
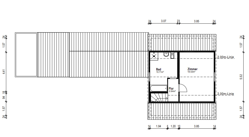
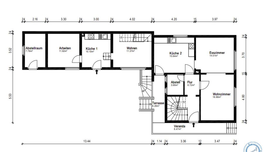
- Etagen im Haus3
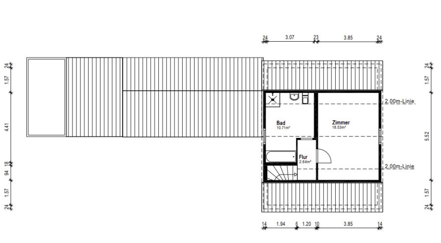
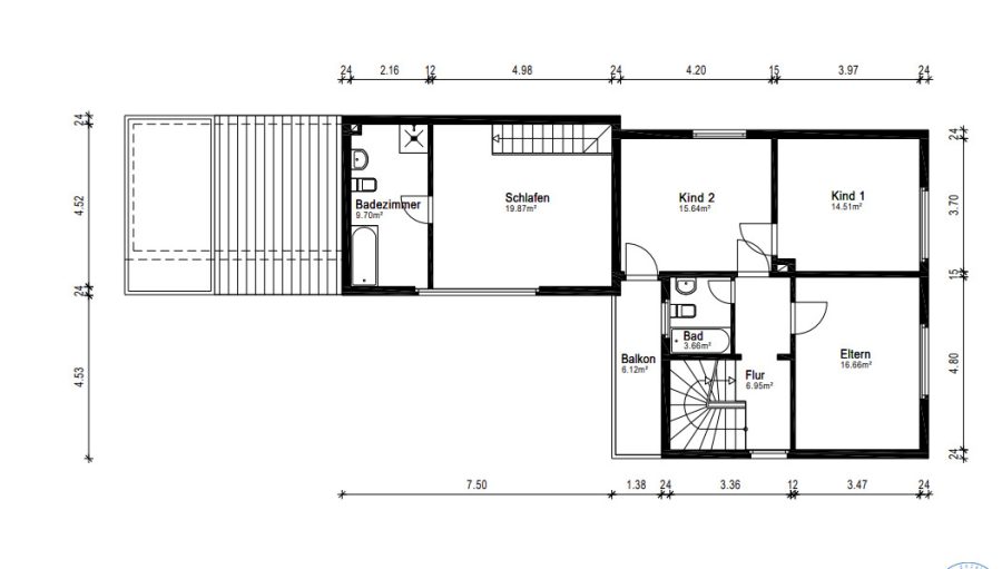
- Wohnfläche ca.215 m²
- Nutzfläche ca.30 m²
- Grundstück ca.689 m²
- Zimmer8
- Schlafzimmer5
- Badezimmer3
- Separate WC1
- Balkone2
- Terrassen1
- Wesentlicher EnergieträgerStrom
- Baujahr1936
- Zustandteil-/vollsaniert
- Stellplätze gesamt2
- Garagen2 Stellplätze
- Käuferprovision3,57% inkl. MwSt.
Hiermit möchten wir auf die Tätigkeit des Maklers unsererseits hinweisen, welche eine Provisionszahlung von Ihnen in Höhe von 3,57% inkl. ges. MWST beinhaltet. - Kaufpreis849.000 EUR
Objektbeschreibung
Beschreibung
Suchen Sie ein frisch saniertes Zuhause im charmanten Landhausstil, das modernen Wohnkomfort mit stilvoller Gemütlichkeit verbindet? Legen Sie Wert auf ein großzügiges Raumangebot, eine separate Einliegerwohnung und eine zentrale Lage mit optimaler Infrastruktur? Dann ist dieses Einfamilienhaus genau das Richtige für Sie!
Das ursprünglich 1936 erbaute und 2021 umfassend sanierte Haus präsentiert sich heute in neuem Glanz. Auf rund 215 m² Wohnfläche und insgesamt 8 Zimmern erwartet Sie ein durchdachter Grundriss, der Familienleben, Homeoffice und individuelle Wohnideen perfekt miteinander verbindet. Die liebevoll aufgearbeiteten Holzdielen, die hochwertigen Bäder sowie die moderne Küche unterstreichen den besonderen Charme dieses Landhauses. Der Keller ergänzt das großzügige Raumangebot mit 3 großen Räumen, einem zusätzliches WC und einem direkten Zugang zum Garten.
Das Herzstück des Hauses bildet der großzügige Wohn- und Essbereich mit Zugang zur Terrasse und in den Garten – ein Rückzugsort, der zum Entspannen, Spielen und Genießen einlädt. Dank Brunnen und Bewässerungssystem ist auch an heißen Sommertagen für grüne Frische gesorgt. Im späteren Verlauf könnte dieser Bereich auch als eigenes Baugrundstück genutzt werden. (Bereits jetzt möglich bei Wunsch)
Ein weiteres Highlight ist der Anbau aus dem Jahr 1969 mit eigener Einliegerwohnung. Ob als Wohnraum für erwachsene Kinder, die Schwiegereltern oder zur Vermietung (z. B. AirBnB) – hier stehen Ihnen vielfältige Nutzungsmöglichkeiten offen.
Die umfangreichen Sanierungsmaßnahmen, darunter der Einbau einer Wärmepumpe, neue Fenster, Heiz- und Wasserleitungen, Elektrik, Fassade sowie die Modernisierung von Küche und Bädern, garantieren Ihnen ein energieeffizientes und zukunftssicheres Zuhause (Energieeffizienzklasse B).
Willkommen in einem Haus, das Tradition und Moderne perfekt verbindet – ein echtes Wohlfühlrefugium für die ganze Familie.
Nutzen Sie diese einmalige Gelegenheit und vereinbaren Sie noch heute einen Besichtigungstermin! Wir freuen uns auf Ihre Anfrage und stellen Ihnen gerne ein ausführliches Exposé zur Verfügung.
Ausstattung
Alle Highlights auf einen Blick:
+ Saniertes Einfamilienhaus im Landhausstiel
+ Separates Büro zum ruhigen Arbeiten
+ Durchdachter Grundriss für Familien
+ Große & lichtreiche Räume
+ Der Garten verfügt über ein Bewässerungssystem
+ Brunnen im Garten
+ Extra tiefe Garage
+ Bebauung des Hintergrundstück ist möglich
+ Anbau mit Einliegerbereich von 1969
+ Unterkellerung des Haupthauses
In dem Objekt inkl. Anbau wurden 2021 umfassende Sanierungsmaßnahmen durchgeführt.
+ Einbau einer Wärmepumpe
+ Erneuerung der Fenster
+ Erneuerung der Heizleitungen + Heizkörper
+ Erneuerung der Wasser & Abwasserleitungen
+ Erneuerung der Elektrik
+ Erneuerung der Fassade
+ Erneuerung der Bäder & Küche
+ Aufbereitung des Dielenbodens und Innenausbaus
Notiz: Für kleinere Ausbesserungen sollte trotzdem noch ein Budget von ca. 20.000 einkalkuliert werden.
Sonstige Informationen
HAFTUNG: Wir weisen darauf hin, dass die von uns weitergegebenen Objektinformationen, Unterlagen, Pläne etc. ausschließlich auf Informationen basieren, die uns vom Verkäufer zur Verfügung gestellt wurden. Wir übernehmen keine Gewähr für die Vollständigkeit, Richtigkeit und Aktualität dieser Angaben. Alle Immobilienangebote sind freibleibend und vorbehaltlich Irrtümer, Zwischenverkauf- und Vermietung oder sonstiger Zwischenverwertung. Die Bilder im Exposé können vom tatsächlichen Ergebnis abweichen.
GELDWÄSCHE: Wir weisen darauf hin, dass Immobilienmaklerunternehmen nach § § 1, 2 Abs. 1 Nr. 10, 4 Abs. 3 Geldwäschegesetz (GwG) vor dem Entstehen einer Geschäftsbeziehung zur Feststellung und Überprüfung des Vertragspartners verpflichtet sind. Dies erfolgt z.B. durch eine Kopie Ihres Personalausweises. Die Angaben hieraus müssen gemäß Geldwäschegesetz fünf Jahre aufbewahrt werden.
Ausstattung / Merkmale
- ✓ Balkon
- ✓ Einliegerwohnung
- ✓ Keller
- ✓ Separates WC
- ✓ Terrasse
Energieausweis
- EnergieausweistypBedarfsausweis
- Gültig bis06.06.2035
- GebäudeartWohngebäude
- Baujahr lt. Energieausweis1936
- PrimärenergieträgerStrom
- Endenergiebedarf67,66 kWh/(m²·a)
- EnergieeffizienzklasseB
Lage
Mikrolage:
Aldi & Netto sind 250 Meter entfernt, Edeka 1,2 km.
Ein Kindergarten ist in 2 Minuten fußläufig erreichbar.
Die Grundschule ist in 10 Gehminuten erreichbar.
Diverse Restaurant & Caffee´s befinden sich ebenfalls in einem 500 Meter Radius.
Der S-Bahnhof ist ebenfalls in 3 Minuten zu Fuß erreichbar.
Makrolage:
Zentrale Lage
Das Einfamilienhaus mit Einliegerbereich befindet sich in einer schönen Wohngegend mit hervorragender Infrastruktur.
Familienfreundliches Umfeld
Kindergärten, Grundschule und weiterführende Schulen sind bequem erreichbar. Spielplätze und Freizeitangebote für Kinder liegen in unmittelbarer Nähe, sodass ein familiengerechter Alltag bestens unterstützt wird.
Einkauf & Versorgung
Diverse Einkaufsmöglichkeiten, Bäcker, Apotheken und Supermärkte befinden sich im Ort. Auch Ärzte und Dienstleister sind schnell erreichbar, sodass alle Dinge des täglichen Bedarfs fußläufig oder per Fahrrad erledigt werden können.
Verkehrsanbindung
Die Lage ist ideal für Pendler: Der Nauheimer Bahnhof liegt nur wenige Gehminuten entfernt und bietet eine direkte Verbindung nach Mainz, Wiesbaden und Frankfurt. Über die A60 und A67 erreichen Sie die umliegenden Städte ebenfalls in kurzer Fahrzeit.
Freizeit & Natur
Nauheim ist von Wiesen und Feldern umgeben und bietet zahlreiche Rad- und Spazierwege. Der nahegelegene Hegbachsee sowie das Naherholungsgebiet „Unterm Born“ laden zu Ausflügen ins Grüne ein.
Fazit
Eine attraktive Lage für Familien, die ruhiges Wohnen, gute Infrastruktur und eine hervorragende Anbindung verbinden möchten.
Die dargestellte Position der Immobilie ist nur eine ungefähre Angabe.
Ihr Ansprechpartner

Herr Jannik Oberkalkofen















































