Sofort Verfügbar! 4,5 Zimmer-Wohnung in ruhiger Lage in Mömbris!
63776 Mömbris / Brücken, Erdgeschosswohnung zur Miete
Objektdaten
- Objekt ID467
- ObjekttypenErdgeschosswohnung, Wohnung
- Adresse63776 Mömbris / Brücken
- Etagen im Haus1
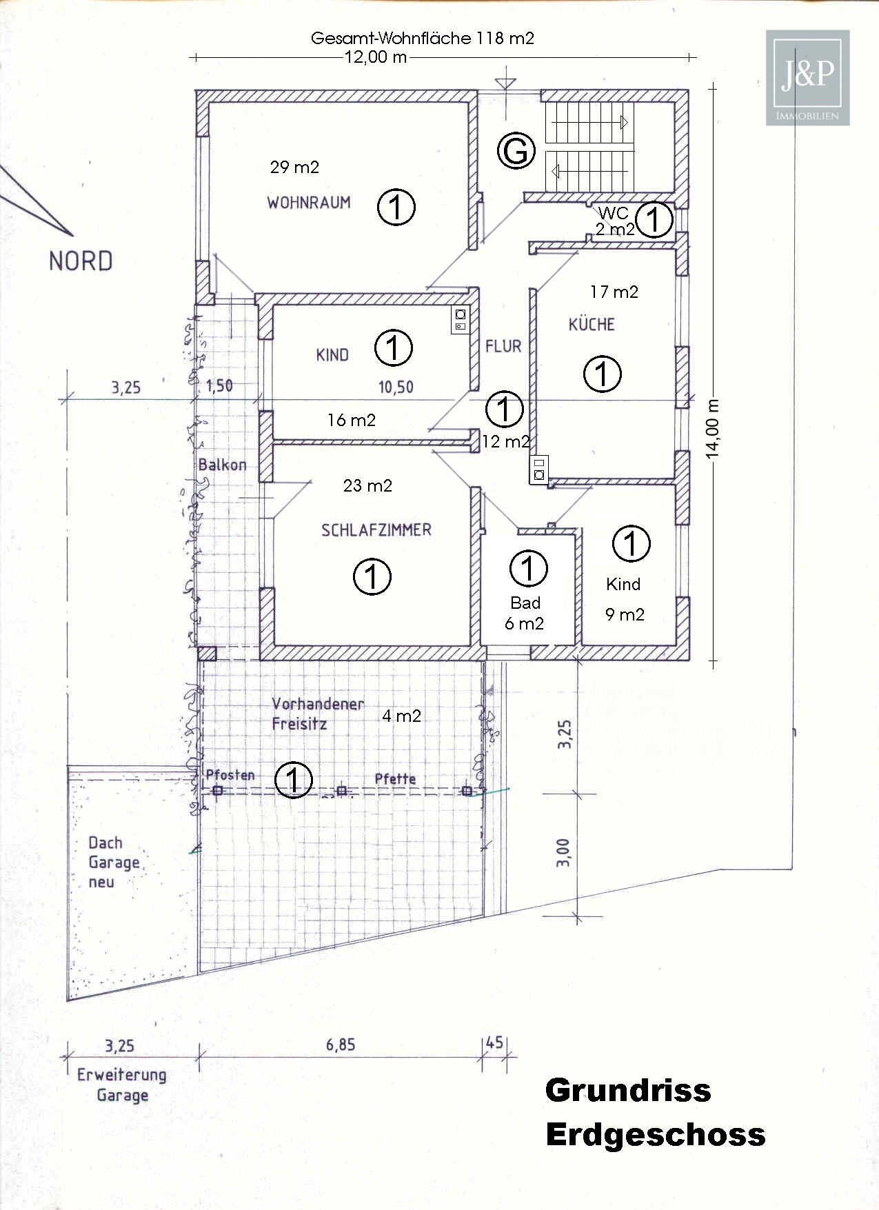
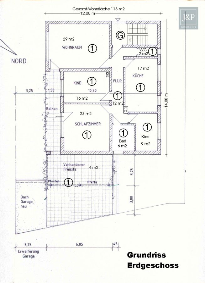
- Wohnfläche ca.125 m²
- Nutzfläche ca.15 m²
- Zimmer4,5
- Schlafzimmer3
- Badezimmer1
- Separate WC1
- Balkone1
- Terrassen1
- HeizungsartOfenheizung
- Wesentlicher EnergieträgerAlternativ
- Baujahr1975
- Zustandgepflegt
- Stellplätze gesamt2
- Stellplätze2 Stellplätze
- Kaltmiete1.250,00 EUR
- Betriebskosten brutto450,00 EUR
- Warmmiete1.700,00 EUR (Heizkosten enthalten)
Objektbeschreibung
Beschreibung
Sie suchen eine helle, großzügige Wohnung für die ganze Familie in ruhiger Lage? Dann könnte diese 4,5-Zimmer-Wohnung im Erdgeschoss eines gepflegten Zweifamilienhauses in Mömbris genau das Richtige für Sie sein.
Die Wohnung ist einzugsbereit und überzeugt mit einem einladenden Wohnbereich, einer großen Essküche, einem geräumigen Schlafzimmer, zwei weiteren Schlafzimmern sowie einem modernen Hauptbad aus dem Jahr 2022, das mit stilvollen Fliesen und einem Pissoir ausgestattet ist. Ergänzt wird die Wohnung durch ein separates Gäste-WC. Die Böden sind mit Teppich und Parkett belegt – gepflegt, jedoch könnte der Teppich oder die Küche in Absprache modernisiert werden. Jegliche Renovierungen werden vorerst dem Mieter überlassen.
Besonders hervorzuheben sind der Balkon mit schöner Talsicht sowie die großzügige Terrasse über der Garage, die Ihnen sonnige Stunden im Freien ermöglicht. Die gesamte Innenausstattung kann auf Wunsch teilweise oder komplett vom Mieter übernommen werden. Zwei Außenstellplätze direkt vor dem Hauseingang runden das Angebot ab.
Die Innenausstattung kann ganz oder teilweise übernommen werden.
Die Wohnung befindet sich in einer sehr ruhigen, familienfreundlichen Wohnstraße – ideal für Paare oder Familien, die ein Zuhause mit viel Platz, Komfort und attraktiven Außenbereichen suchen.
Ausstattung
Alle Highlights auf einen Blick!
+ Große Dachterrasse mit einmaliger Aussicht
+ Separates Gäste-WC
+ Modernes seniorengerechtes Badezimmer aus 2022
+ Großzügige Essküche für gemeinsame Abende
+ Familiäres Umfeld in ruhiger Lage
+ Balkon mit Talsicht
+ Zwei Außenstellplätze direkt vor der Haustür
+ Sehr gute Anbindung zum Nahverkehr
Sonstige Informationen
HAFTUNG: Wir weisen darauf hin, dass die von uns weitergegebenen Objektinformationen, Unterlagen, Pläne etc. ausschließlich auf Informationen basieren, die uns vom Vermieter zur Verfügung gestellt wurden. Wir übernehmen keine Gewähr für die Vollständigkeit, Richtigkeit und Aktualität dieser Angaben. Alle Immobilienangebote sind freibleibend und vorbehaltlich Irrtümer, Zwischenverkauf- und Vermietung oder sonstiger Zwischenverwertung. Die Bilder im Exposé können vom tatsächlichen Ergebnis abweichen.
GELDWÄSCHE: Wir weisen darauf hin, dass Immobilienmaklerunternehmen nach § § 1, 2 Abs. 1 Nr. 10, 4 Abs. 3 Geldwäschegesetz (GwG) vor dem Entstehen einer Geschäftsbeziehung zur Feststellung und Überprüfung des Vertragspartners verpflichtet sind. Dies erfolgt z.B. durch eine Kopie Ihres Personalausweises. Die Angaben hieraus müssen gemäß Geldwäschegesetz fünf Jahre aufbewahrt werden.
Ausstattung / Merkmale
- ✓ Balkon
- ✓ Keller
- ✓ Separates WC
- ✓ Terrasse
Energieausweis
- EnergieausweistypBedarfsausweis
- Gültig bis06.11.2035
- GebäudeartWohngebäude
- Baujahr lt. Energieausweis1975
- PrimärenergieträgerHolz/Hackschnitzel
- Endenergiebedarf145,00 kWh/(m²·a)
- EnergieeffizienzklasseE
Lage
Die Wohnung liegt in einer sehr ruhigen, naturnahen Wohnlage in Mömbris am Fuße des Hahnenkamms. Ideal für Familien oder Paare, die Ruhe und Privatsphäre suchen. Einkaufsmöglichkeiten, Schulen, Kindergärten und Ärzte sind in den Ortsteilen rund um Mömbris erreichbar, größere Städte wie Aschaffenburg und Frankfurt sind mit dem Auto, sowie mit dem fußläufig erreichbaren Bahnhof gut zu erreichen. Die Umgebung bietet viel Grün, Spazier- und Freizeitmöglichkeiten – perfekt für alle, die ländliches Wohnen schätzen.
Die dargestellte Position der Immobilie ist nur eine ungefähre Angabe.
Ihr Ansprechpartner
Herr Jan Grunwald

















