2 Familienhaus mit schönem Gartengrundstück, guter Aufteilung und Partykeller
65795 Hattersheim, Zweifamilienhaus zum Kauf
Objektdaten
- Objekt ID565
- ObjekttypenHaus, Zweifamilienhaus
- Adresse65795 Hattersheim
- Etagen im Haus3
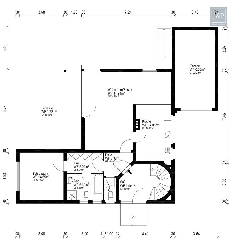
- Wohnfläche ca.174,60 m²
- Nutzfläche ca.115 m²
- Grundstück ca.609 m²
- Zimmer5
- Schlafzimmer3
- Badezimmer2
- Separate WC2
- Balkone1
- Terrassen1
- Wesentlicher EnergieträgerGas
- Baujahr1965
- Zustandgepflegt
- Stellplätze gesamt3
- Stellplätze2 Stellplätze
- Garage1 Stellplatz
- Käuferprovision3,57% inkl. MwSt.
Hiermit möchten wir auf die Tätigkeit des Maklers unsererseits hinweisen, welche eine Provisionszahlung von Ihnen in Höhe von 3,57% inkl. ges. MWST beinhaltet. - Kaufpreis685.000 EUR
Objektbeschreibung
Beschreibung
Sie suchen ein Zuhause, das Ihrer Familie Raum gibt – heute und auch in Zukunft?
Ein Haus, das flexible Wohnkonzepte ermöglicht und gleichzeitig einen eigenen Garten zum Leben bietet? Dann sollten Sie sich dieses Zweifamilienhaus genauer ansehen.
Diese schöne Immobilie überzeugt durch eine durchdachte Aufteilung und vielseitige Nutzungsmöglichkeiten. Auf rund 175 m² Wohnfläche verteilen sich zwei separate Wohneinheiten, die sowohl gemeinsam als großes Einfamilienhaus als auch getrennt genutzt werden können – ideal für Familien, Mehrgenerationenwohnen oder die Kombination aus Eigennutzung und Vermietung.
Im Erdgeschoss befindet sich eine gut geschnittene 2-Zimmer-Wohnung mit direktem Zugang zur großzügigen Terrasse und dem Garten. Gerade dieser Bereich wird schnell zum Lebensmittelpunkt: Kinder spielen im Garten, während man selbst entspannt auf der Terrasse sitzt oder den Tag gemeinsam ausklingen lässt. Der vorhandene Kamin im Wohnbereich unterstreicht dabei die wohnliche Atmosphäre zusätzlich.
Das Obergeschoss bietet eine 3-Zimmer-Wohnung, die durch ihre Helligkeit und den direkten Zugang zum Balkon überzeugt. Große Fensterflächen sorgen für viel Licht und schaffen eine angenehme Wohnatmosphäre. Die Räume wirken modern und klar strukturiert – perfekt für Familienmitglieder, die ihren eigenen Bereich innerhalb des Hauses haben möchten.
Das Haus bietet damit eine Struktur, die im Alltag echten Mehrwert schafft:
Ob Eltern und Kinder auf getrennten Ebenen, Großeltern im Erdgeschoss oder die Möglichkeit zur teilweisen Vermietung – hier sind verschiedene Lebensmodelle problemlos umsetzbar.
Ein weiteres Highlight ist der großzügige Garten auf dem rund 609 m² großen Grundstück. Dieser bietet ausreichend Platz für Spiel, Entspannung und gemeinsame Zeit im Freien – ein echtes Plus für Familien.
Zusätzlich eröffnet der voll ausgebaute Keller mit separatem Bereich – inklusive Partykeller – weitere Möglichkeiten: vom Hobbyraum bis hin zu geselligen Abenden mit Freunden.
Das Haus präsentiert sich insgesamt in einem gepflegten Zustand mit solider Substanz und wurde über die Jahre laufend modernisiert. Gleichzeitig bietet es noch ausreichend Spielraum, um es nach den eigenen Vorstellungen weiterzuentwickeln.
Abgerundet wird das Angebot durch eine Garage sowie zusätzliche Stellplätze direkt am Haus.
Wenn Sie ein Zuhause suchen, das Flexibilität, Platz und Lebensqualität vereint, ist diese Immobilie eine seltene Gelegenheit.
Stellen Sie jetzt Ihre Anfrage und entdecken Sie, welches Potenzial dieses Haus für Ihre Familie bereithält.
Ausstattung
Alle Highlight auf einen Blick:
+ Nutzbar als EFH oder ZFH für Mehrgenerationenwohnen
+ Ein Kamin in der EG Wohnung
+ Garage
+ Vollausgebauter Keller & Partykeller
+ Große Terrasse im EG
+ Großer Balkon im OG
+ Ausbaureserve im DG
+ Gute Bausubstanz mit großem Grundstück in Hattersheim Stadt.
+ Beide Wohneinheiten besitzen ein separates Gäste-WC
Diese Erneuerungen wurden bereits durchgeführt:
Das Haus wurde mit dem Anbau in 1989 umfassend erneuert. Unter anderem wurden hier folgende Elemente ausgetauscht:
+ Das Dach
+ Die Elektrik
+ Die Wasser & Abwasserleitungen
Die Gasheizung ist aus 2004
Das Dach wurde um 2005 nachträglich gedämmt.
Die Fenster wurden zwischen 2005 und 2019 gewechselt. (2 bis 3-fach Verglast) teilw. elektrisch.
Flurbereich und die obere Wohnung wurden darüber hinaus laufend modernisiert um Sie auf ein zeitgemäßen Stand zu halten.
Sonstige Informationen
HAFTUNG: Wir weisen darauf hin, dass die von uns weitergegebenen Objektinformationen, Unterlagen, Pläne etc. ausschließlich auf Informationen basieren, die uns vom Verkäufer zur Verfügung gestellt wurden. Wir übernehmen keine Gewähr für die Vollständigkeit, Richtigkeit und Aktualität dieser Angaben. Alle Immobilienangebote sind freibleibend und vorbehaltlich Irrtümer, Zwischenverkauf- und Vermietung oder sonstiger Zwischenverwertung. Die Bilder im Exposé können vom tatsächlichen Ergebnis abweichen.
GELDWÄSCHE: Wir weisen darauf hin, dass Immobilienmaklerunternehmen nach § § 1, 2 Abs. 1 Nr. 10, 4 Abs. 3 Geldwäschegesetz (GwG) vor dem Entstehen einer Geschäftsbeziehung zur Feststellung und Überprüfung des Vertragspartners verpflichtet sind. Dies erfolgt z.B. durch eine Kopie Ihres Personalausweises. Die Angaben hieraus müssen gemäß Geldwäschegesetz fünf Jahre aufbewahrt werden.
Ausstattung / Merkmale
- ✓ Balkon
- ✓ Kamin
- ✓ Keller
- ✓ Separates WC
- ✓ Terrasse
Energieausweis
- EnergieausweistypBedarfsausweis
- Gültig bis04.05.2036
- GebäudeartWohngebäude
- Baujahr lt. Energieausweis1965
- PrimärenergieträgerGas
- Endenergiebedarf176,51 kWh/(m²·a)
- EnergieeffizienzklasseF
Lage
Wichtigsten Punkte als Übersicht:
+ Direkte Anbindung an die A66 (Fahrzeit Frankfurt 15 Min, Wiesbaden 12 Min, Mainz 15 Min)
+ A3 und A5 können in 7 min erreicht werden
+ Feldrandnähe mit einem Abendteuerspielplatz
+ Kindergarten & Grundschule innerhalb 300 Meter.
+ S-Bahn Anschluss S1 von Frankfurt (18Min) über Mainz (18 Min) nach Wiesbaden (23 Min)
+ Der Flughafen Frankfurt ist innerhalb von 12 Minuten mit dem Auto erreichbar
Beschreibung:
Hattersheim am Main ist eine familienfreundliche Stadt in Hessen, Deutschland. Die Lage ist ideal für Familien, da sie eine ausgewogene Mischung aus städtischem Komfort und natürlicher Schönheit bietet.
Folgende Punkte zeichnet Hattersheim vor allem aus:
Grüne Umgebung: Hattersheim ist von malerischer Natur umgeben, einschließlich des Mains, umliegenden Felder und dem direkt angrenzenden Taunus Gebiet. Hier können Sie in den zahlreichen Parks und Grünflächen entspannen, Spaziergänge unternehmen und die Natur genießen.
Infrastruktur für Kinder: Die Stadt verfügt über eine gut entwickelte Infrastruktur für Kinder, darunter 5 Kindergärten, 2 Grundschulen und eine Gesamtschule mit diversen Spielplätzen. Die Bildungseinrichtungen sind bekannt für ihre Qualität und bieten eine sichere Umgebung für die Entwicklung der jungen Generation.
Freizeitmöglichkeiten: Es gibt verschiedene Freizeitmöglichkeiten für Familien, von Radwegen entlang des Mains bis hin zu Freizeitparks und Sporteinrichtungen. Die Stadt fördert eine aktive Lebensweise und bietet viele Möglichkeiten für gemeinsame Aktivitäten.
Kulturelle Vielfalt: Hattersheim hat eine lebendige kulturelle Szene, die es Familien ermöglicht, an verschiedenen Veranstaltungen und Festen teilzunehmen. Die Altstadt und der Posthofkeller bieten eine perfekte Lokalität für Konzerte, Weihnachtsmärkte etc.. Eine Reihe von verschiedenen Restaurants sowie Friseure und Cafés prägen hierbei die Innenstadt. Dies fördert nicht nur die soziale Integration, sondern bietet auch die Möglichkeit, neue Dinge zu entdecken und gemeinsam Spaß zu haben.
Einkaufsmöglichkeiten und Dienstleistungen: Die Stadt verfügt über eine gute Auswahl an Einkaufsmöglichkeiten, von lokalen Märkten bis zu größeren Einkaufszentren.
Insgesamt bietet Hattersheim am Main eine ausgewogene Umgebung für Familien, die ein angenehmes und aktives Leben suchen. Die Stadt legt Wert auf Gemeinschaft, Bildung und Freizeitgestaltung und schafft somit ein attraktives Umfeld für Familien jeden Alter
Die dargestellte Position der Immobilie ist nur eine ungefähre Angabe.
Ihre Ansprechpartnerin

Frau Jule Jantke




































